APPARTAMENTO -CALSTELFRANCO – ROGNO- RGN 18
**Appartamento in Vendita – Spazio e Comfort nel Cuore della…
135.000€
Via Albera, 25047 Darfo BS, Italia
Vendita
260.000€
ID Proprietà :
SC-28022
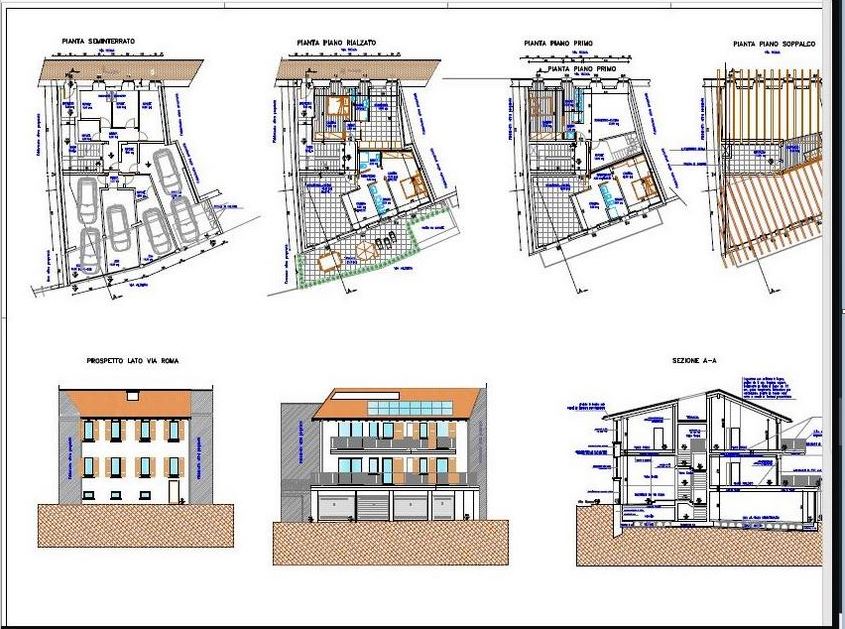
Scopri un’opportunità unica nel cuore di Darfo Boario Terme! Questo elegante edificio residenziale di prossima ristrutturazione, situato in una posizione centrale tra Via Roma e Via Albera, offre 4 appartamenti. In una palazzina di soli 2 piani, ogni unità è progettata per garantire il massimo comfort e stile. Gli appartamenti, disponibili in diverse metrature, vantano una classe energetica A, riscaldamento a pavimento e raffrescamento, il tutto in un contesto moderno e accogliente.
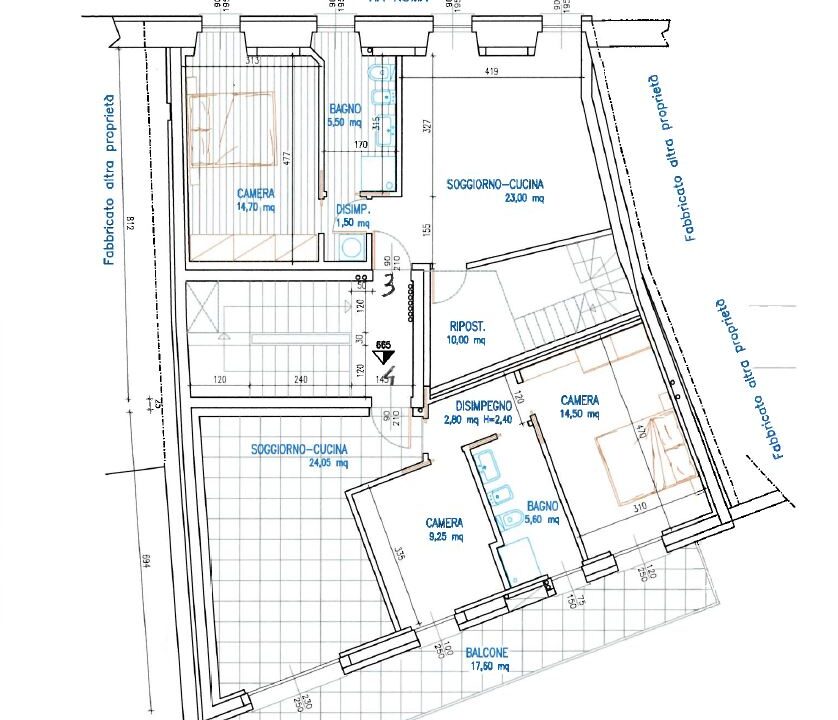
Al piano rialzato troverai un trilocale, composto da due camere, due bagni un disimpegno, un soggiorno/cucina e un grande terrazzo. Le travi a vista aggiungono un tocco di charme e calore agli spazi interni. L’ appartamento include un box auto e una cantina, il prezzo è di € 260.000 , rendendo questo progetto ideale per chi cerca una nuova casa o un investimento sicuro. Non perdere l’occasione di vivere in un ambiente raffinato e completamente ristrutturato. Contattaci per maggiori informazioni!
**Appartamento in Vendita – Spazio e Comfort nel Cuore della…
135.000€
**CAMPOLARO – Casa Indipendente in Vendita a 1400 Metri sul…
69.000€
PALAZZINA IN RISTRUTTURAZIONE VIA ROMA – VIA ALBERA – DARFO BOARIO *CON TERRAZZA E SOPPALCO ESCLUSIVI*